© Bezpieczneschrony.eu – Wszelkie prawa zastrzeżone.
Polityka prywatności

www.bezpieczneschrony.eu
Miejsca Doraźnego Schronienia
Szybkie wdrożenie, bezpieczeństwo dla ludności. Zgodne z przepisami MDS 2025/2026
ZGODNIE
NASZA MISJA
Naszym nadrzędnym celem jest zapewnienie realnej ochrony obywatelom – w szkołach, miejscach publicznych i przestrzeni miejskiej.
Miejsca Doraźnego Schronienia (MDS) to specjalnie zaprojektowane obiekty budowlane, które w sytuacjach zagrożenia pozwalają ludności cywilnej bezpiecznie się ukryć. Nie są to obiekty do długotrwałego pobytu – ich rolą jest zapewnienie natychmiastowego, podstawowego poziomu ochrony, który może uratować życie.
Projektując MDS i schrony, myślimy o konkretnych ludziach – dzieciach w szkołach, pasażerach komunikacji miejskiej, rodzinach w przestrzeni publicznej. MDS Polska, schrony dla samorządów i budowa schronów publicznych.
Miejsca Doraźnego Schronienia stanowią element systemu zbiorowej ochrony ludności. Budujemy je zgodnie z przepisami, zgodnie z nowymi przepisami Rady Ministrów z dnia 31 lipca 2025 roku w oparciu o program budowy schronów 2025-2026.

BEZPIECZNE SCHRONY
Na czym się koncentrujemy? Czym jest MDS?
Bezpieczeństwo
Bezpieczeństwo osób przebywających w miejscu doraźnego schronienia (MDS) jest naszym nadrzędnym priorytetem. Konstrukcje projektujemy zgodnie z wymogami technicznymi określonymi w przepisach dotyczących ochrony ludności.
Podwójne zastosowanie
Większość wdrażanych projektów pełni funkcję obiektu zbiorowej ochrony ludności w zastosowaniach cywilnych i wojskowych. Autorskie rozwiązania, takie jak szatnie przy szkołach i przedszkolach czy przystanki autobusowe, odpowiadają na aktualne potrzeby ochrony ludności.
Modułowość
Projektujemy i wykonujemy moduły w sposób powtarzalny i ustandaryzowany, co umożliwia ich szybkie łączenie oraz adaptację do istniejącego budynku – w tym kondygnacji podziemnych i garaży podziemnych.
Konfiguracja
Podaj nam liczbę osób wymagających schronienia, a przygotujemy konfigurację miejsca doraźnego zakwaterowania w pełni zgodną z wymogami rozporządzenia Ministra Spraw Wewnętrznych i Administracji.
Zarządzanie zdalne
Specjalnie opracowany system umożliwia zarządzanie przez właściwy organ ochrony ludności lub wyznaczony podmiot ochrony ludności, zgodnie z przepisami ustawy.
Trwałość i odporność
Każdy moduł projektowany jest jako element obiektu budowlanego zbiorowej ochrony, odpornego na ekstremalne warunki, w tym zagrożenia związane z sytuacjami kryzysowymi.
STATYSTYKI I FUNkcJE
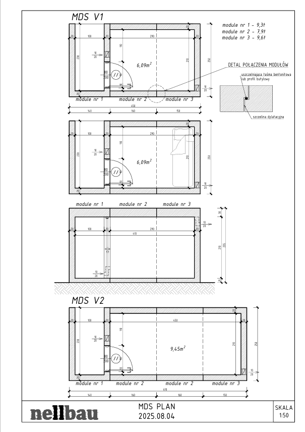
Nasze schrony modułowe (miejsca doraźnego schronienia, lub schronienie doraźne) zostały zaprojektowane z myślą o maksymalnej funkcjonalności i bezpieczeństwie.
Każdy moduł posiada precyzyjnie opracowane parametry techniczne, które gwarantują trwałość, łatwość montażu oraz możliwość rozbudowy. Dzięki standaryzacji elementów, system można dostosować do liczby użytkowników i wymagań przestrzennych.


Współpraca
Realizujemy projekty dla jednostek samorządu terytorialnego, szkół i uczelni, budynków mieszkalnych wielorodzinnych, podmiotów prywatnych oraz inwestorów realizujących nowe obiekty budowlane, zapewniając kompleksowe wsparcie na każdym etapie wdrażania miejsc doraźnego schronienia. Podstawą działań jest ustawa schronowa.
Zapewniamy kompleksowe wsparcie:
– Analiza przepisów ustawy o ochronie ludności
– Opracowanie koncepcji organizacji miejsc doraźnego schronienia
– Projekt techniczny zgodny z rozporządzeniem Ministra Spraw Wewnętrznych i Administracji
– Wykonanie miejsc doraźnego schronienia
– Wsparcie formalne wobec właściwego organu ochrony ludności
Dzięki elastycznym modelom współpracy możemy działać zarówno w ramach przetargów publicznych, jak i indywidualnych zleceń.
Chcesz dowiedzieć się, jak możemy wspólnie zwiększyć bezpieczeństwo w Twojej społeczności?
Instytucje publiczne
Szkoły i uczelnie
Firmy prywatne
Partnerzy zagraniczni
Wizualizacja miejsca doraźnego schronienia
Prezentowany model przedstawia hermetyczne miejsce doraźnego schronienia zaprojektowane zgodnie z aktualnymi przepisami ustawy o ochronie ludności i obronie cywilnej oraz nowymi wymogami technicznymi wchodzącymi w życie od 2026 r.
Zastosowanie technologii górniczych, w tym obudowy górniczej oraz betonu natryskowego, umożliwia kilkukrotnie szybsze wykonanie obiektu zbiorowej ochrony w porównaniu do tradycyjnych metod budowlanych. Konstrukcja zapewnia podwyższony poziom odporności oraz dodatkową ochronę w sytuacjach zagrożenia.
System może zostać wykonany jako:
– obiekt podziemny,
– adaptacja istniejącej kondygnacji podziemnej,
– przystosowanie garażu podziemnego,
– samodzielny moduł ochronny.
Rozwiązanie spełnia wymogi techniczne, jakie powinny spełniać miejsca doraźnego schronienia oraz umożliwia szybkie wdrożenie w budynkach użyteczności publicznej i budynkach mieszkalnych wielorodzinnych.
Galeria
Galeria przedstawia symulacje zastosowania naszych produktów w różnych środowiskach. Główne zalety to podwójne zostosowanie oraz szybkosc realizacji sięgającą kilkudziesięciu godzin.
Indywidualny schron
Zbuduj z nami schron dopasowany do Twoich oczekiwań
Każdy projekt realizujemy w pełni indywidualnie, dzięki czemu możesz dostosować schron do swoich potrzeb i warunków. Oferujemy szerokie możliwości personalizacji – od wielkości konstrukcji, przez użyte materiały i rozwiązania techniczne, aż po wygląd wnętrza i dodatkowe wyposażenie.
Naszym celem jest stworzenie miejsca, które zapewni Ci maksymalne bezpieczeństwo i komfort, niezależnie od sytuacji.
Wybierając nasz schron zyskujesz kontrolę nad:
• powierzchnią i liczbą miejsc,
• wykończeniem i aranżacją wnętrza,
• doborem wyposażenia,
• wielkością i konfiguracją całej konstrukcji.
Skontaktuj się z nami mailowo lub telefonicznie, aby omówić szczegóły i zaprojektować schron, który spełni wszystkie Twoje wymagania.

Masz pytania? Chcesz poznać szczegóły?
SKONTAKTUJ SIĘ Z NAMI











